israil, işgal altındaki Batı Şeria’da bulunan ve Hz. İbrahim’in (a.s.) medfun olduğuna inanılan bu kutsal mekanın kontrolünü ele geçirmeye çalışıyor.
İşgal altındaki Batı Şeria’nın El-Halil (Hebron) kentinde yer alan İbrahim Camii, İslam, Yahudilik ve Hristiyanlık açısından en kutsal mekanlardan biridir.
Cami, 1.400 yılı aşkın süredir Filistinliler tarafından yönetilmekte ve cami olarak kullanılmaktadır.
Ancak son dönemde israil, mekan üzerindeki kontrolünü genişletmeye yönelik adımlar atıyor. Ocak ayında israil, caminin Filistinli yöneticilerinin girişini yasaklamış ve alanın bir bölümü üzerindeki imar yetkilerini, uzun süredir geçerli olan düzenlemelere aykırı biçimde gasp etti.
Bu gelişmeler, Ekim 2023’ten bu yana Filistinli kutsal mekanlara yönelik artan yerleşimci saldırıları ve erişim kısıtlamalarıyla eş zamanlı gerçekleşti. Bunlar arasında işgal altındaki Doğu Kudüs’teki Mescid-i Aksa ve Nablus’taki Yusuf Makamı da yer alıyor.
Ocak ayında israil ordusu, El-Halil başta olmak üzere Batı Şeria’daki birçok Filistin kasaba ve köyüne saldırılar başlattı; Filistinlilere ait ev ve işyerlerine baskınlar düzenledi.

Middle East Eye, bu kutsal mekanın önemini ve israilin son müdahalelerini şöyle açıklıyor:
İbrahim Camii’nin tarihi nedir?
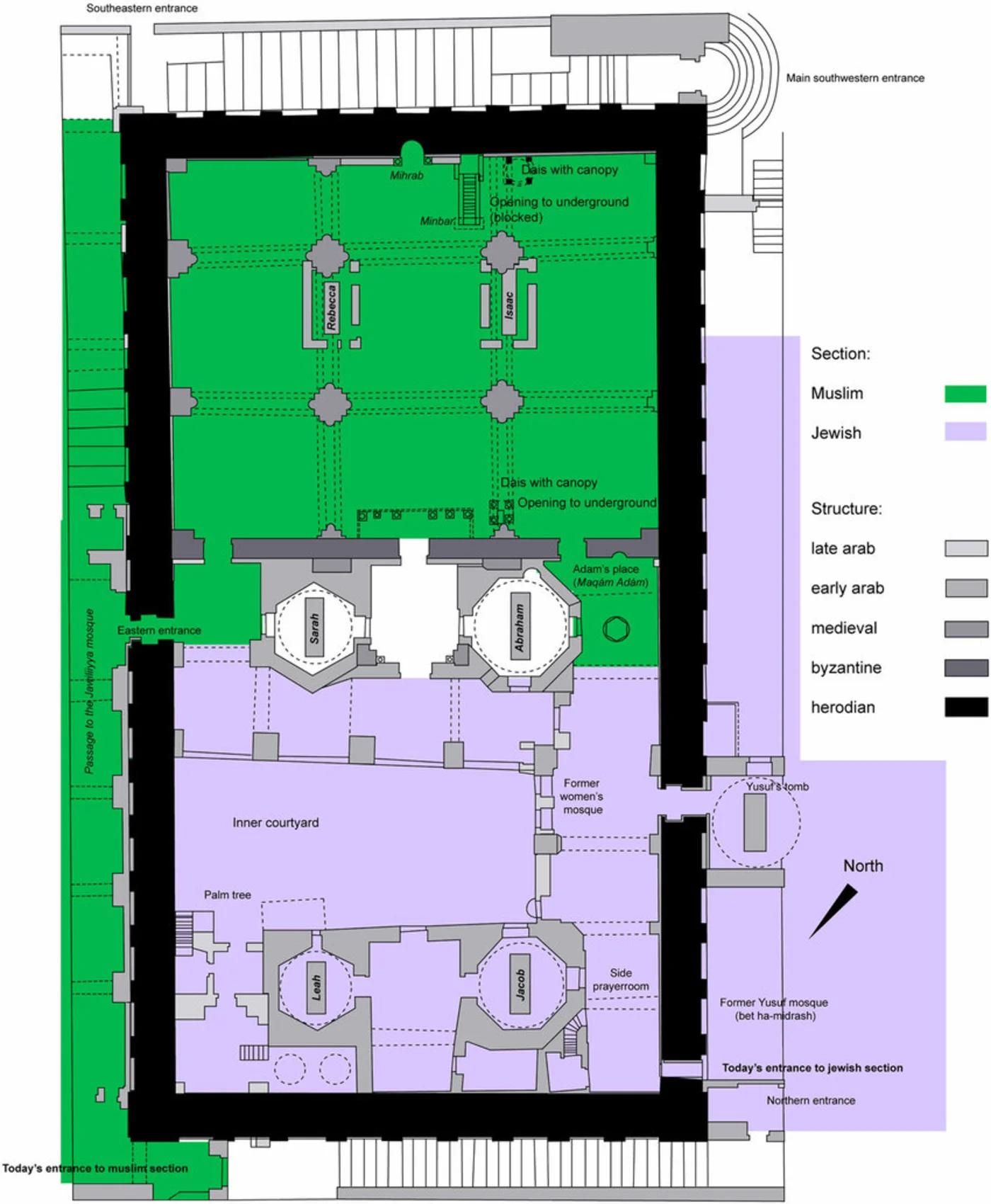
İbrahim Camii, ortaçağ dönemine ait bir dini yapıdır. Altında, 2.000 yıldan daha eski bir mezar kompleksini barındıran mağara sistemi bulunuyor.
Cami, israilin uluslararası hukuka aykırı şekilde 1967’den bu yana işgal altında tuttuğu Batı Şeria’daki El-Halil Eski Şehri’nde yer alıyor.
Burasının, üç büyük semavi dinin atası kabul edilen Hz. İbrahim’in, ayrıca oğlu Hz. İshak ve torunu Hz. Yakup’un kabirlerinin bulunduğu yer olduğuna inanılıyor.
Tevrat ve Talmud’da burası Makpela Mağarası olarak anılır. Günümüz Hristiyanları ve Yahudileri için Atalar Mağarası, Müslümanlar için ise İbrahim Camiidir.
Mevcut yapının büyük bölümü, 12. yüzyılda inşa edilmiş Romanesk tarzda bir Hristiyan kilisesidir. Bu yapı, Haçlılar tarafından yıkılan daha eski bir caminin üzerine inşa edildi.
12. yüzyılın sonlarında Eyyubi Devleti döneminde yapı yeniden camiye çevrilmiştir. Sonraki Memlük (1250-1517) ve Osmanlı (1516-1917) dönemlerinde, siteye erişim yalnızca Müslümanlara açık tutulmuştur.
Ancak 1921’de İngiliz Mandası döneminde Yahudi göçmenler buraya ve Mescid-i Aksa’nın bazı bölümlerine erişim talep etmiş, bu durum Filistinli protestolara ve şehirde ölümcül çatışmalara yol açmıştı.
1948-1967 yılları arasında Batı Şeria Ürdün kontrolündeydi ve Yahudilerin bölgeye girişi yasaktı.
2017 yılında UNESCO, İbrahimî Camii ve El-Halil Eski Şehri’ni, Filistin Devleti’ne ait tehlike altındaki Dünya Mirası Alanı ilan etti.
Bu karar israil ve ABD tarafından kınandı; her ikisi de daha sonra UNESCO’dan çekildi.
israil işgali İbrahim Camii’ni nasıl etkiledi?
1967’de israilin Batı Şeria’yı işgal etmesinin ardından Yahudilerin camiye erişimi arttı ve alanda bir sinagog kuruldu.
1960’ların sonlarından itibaren israil hükümeti, El-Halil’in hemen dışında, gasp edilen Filistin toprakları üzerine kurulan Kiryat Arba adlı Yahudi yerleşimini teşvik etti. Bugün bu yerleşimde yaklaşık 7.000 israilli yerleşimci, 200 bin Filistinlinin yaşadığı şehirle ayrılmış bir yerleşim bölgesinde yaşamakta.
1994 yılında, Kiryat Arba’da yaşayan ABD doğumlu yerleşimci Baruch Goldstein, Ramazan ayında camide namaz kılan Müslümanlara ateş açtı; 29 Filistinli şehit oldu, 125 kişi yaralandı. Goldstein daha sonra hayatta kalanlar tarafından etkisiz hale getirilerek öldürüldü. Ardından çıkan protestolarda israil ordusu onlarca Filistinliyi daha şehit etti.

O tarihten bu yana Filistinliler, camiye giden ana yol olan Şühada Caddesi’ni kullanamıyor.
Saldırıdan önce Filistinli gruplar, dönemin Başbakanı Yitzhak Rabin’e, Goldstein’ın tehlike arz ettiği yönünde yazılı uyarılarda bulunmuştu. Goldstein, 1993’te caminin zeminine asit dökmüştü.
Saldırı Rabin tarafından kınansa da, israilin aşırı sağ kesimleri tarafından yüceltildi. Goldstein’ın Kiryat Arba’daki mezarı, aşırı Siyonistler için bir ziyaret noktasına dönüştü. israilin aşırı sağcı Ulusal Güvenlik Bakanı Itamar Ben-Gvir, 2023’te Goldstein’ın fotoğrafı önünde konuşma yaptı.
Saldırının ardından cami, 1994’te israil öncülüğündeki bir komisyonun tavsiyesiyle fiilen bölündü. Alanın üçte ikisi Yahudilere, üçte biri Müslümanlara ayrıldı.
1997 Hebron Protokolü ile şehir H1 ve H2 olarak ikiye bölündü. Cami, israil askeri kontrolündeki H2 bölgesinde kaldı.
Buna rağmen caminin idaresi İslami Vakıf (Waqf) ve Filistin Yönetimi’ne bağlı El-Halil Belediyesi tarafından yürütülmeye devam etti.
Gazze savaşı sırasında neler yaşandı?
Ekim 2023’ten bu yana İbrahim Camii, erişim kısıtlamaları ve yerleşimci baskınlarının arttığı kutsal mekanlardan biri oldu.
israil, ezanı yasakladı, kullanım saatlerini kısıtladı.
Eylül 2025’te El-Halil’in bağımsız Filistinli Belediye Başkanı Yayseer Abu Sneineh, bazı yerel şeyhlerin israili tanıyan bir “El-Halil Emirliği” kurmayı planladıkları iddiaları üzerine tutuklandı.
30 Aralık’ta, israile bağlı Sivil İdare, caminin merkezi avlusunun yönetimini El-Halil Belediyesi’nden tek taraflı olarak devraldı ve Filistinlilerin karşı çıkmasına rağmen buraya çatı inşa etme yetkisini ele geçirdi.
Caminin müdürü Şeyh Mu‘tez Abu Sneineh ve bekçisi Hammam Abu Murkhiya, 15 gün süreyle camiye girişten men edildi.
israilli yerleşimciler, ibadet düzenlemelerini ihlal ederek camiye defalarca baskın düzenledi; düğünler ve müzik festivalleri yapıldı.
Bu ziyaretçiler arasında Bezalel Smotrich ve Itamar Ben-Gvir gibi aşırı sağcı bakanlar da bulunuyor.

Bundan sonra ne olacak?
Katar, Türkiye ve BAE dışişleri bakanlıkları kararı kınadı ancak somut bir adım atmadı.
El-Halil Belediyesi’nin avukatları, israil Yüksek Mahkemesi’ne başvurdu. Avukatlar, UNESCO kararının, israilin müdahalelerinin uluslararası hukuku ihlal ettiğini kanıtladığını belirtti.
Avukatlar, Haaretz’e yaptıkları açıklamada alınan tüm kararların “yetkisiz, sistematik ve hukuka aykırı” olduğunu vurguladı.





